Mentions légales
Page Précédente
Page Suivante
Lucien Guerra - Architecte Urbaniste
Page Précédente
Page Suivante
Introduction
Réalisations
France
Région Parisienne
Normandie & Bretagne
Picardie & Champagne
Languedoc-Roussillon
Côte d'Azur / Corse
Antilles
Monde
Europe
Moyen OrientAfrique du Nord
Amériques
Vietnam
Réalisations Artistiques
Presse
Contact
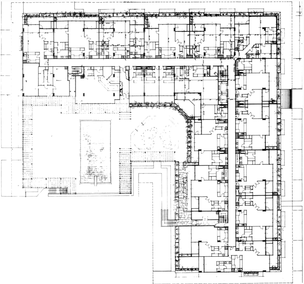
ÉTATS-UNIS
"LE FRANÇAIS"
Maître d'Ouvrage Grupo Lachal
Ensemble résidentiel
de haut standing
au coeur
de Houston